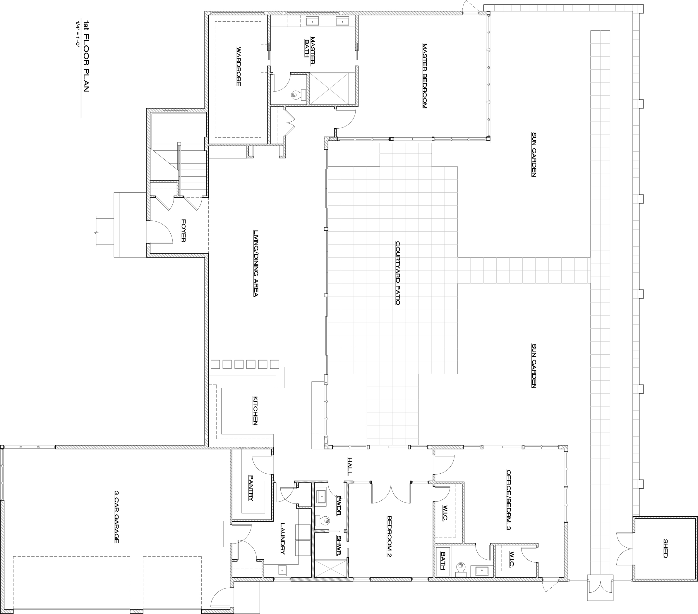
In a city that is known for its traditional styling, it isn’t everyday that architects and builders are given the opportunity to design a modern residence. So when Blue Brick Construction was given the task of building a modern home focused on total simplicity, they jumped at the opportunity. Collaborating with Jeff Day, of Jeff Day Architects, the team created a non-traditional residence for homeowner Sue Cejka, whose love for gardening was incorporated through a U-shaped design where each room has a spectacular view of her garden courtyard. “I love light and I am a gardener, so I wanted a home where every room was completely open to my garden,” Cejka explains.
Floor-to-ceiling windows flank the U-shape of the rear of the home, allowing an ideal view into the colorfully planted courtyard as well as plenty of natural light to spill into the main living areas. A 10-foot wall extends across the back of the property for privacy, which was important to Cejka. For further privacy, the front of the home does not include any windows. To allow for natural light in the home without adding windows to the front, clerestory windows around the top perimeter provide all-day lighting from all four sides of the house in the primary living space.
Architecturally, Jeff Day altered some of the homes initial plans in order to better achieve the look Cejka was after. “I pushed the garage from the rear of the property to the front yard,” Day explains. “This allowed me to make the well-landscaped rear yard a feature that all of the rooms could enjoy.”
While architecturally innovative in design, the home is also forward thinking in the green aspects that were incorporated. Blue Brick first approached Cejka with the idea to build an energy-efficient home by integrating green aspects into the build, an idea she agreed to. “Going green really changes a homeowners entire lifestyle,” says Brad Roell, owner of Blue Brick. “Being green is an epidemic that grows.”
The team has built a super-efficient home, which recently received 31 out of 100 on the Home Energy Star rating system (HERS), which means it is 70% more efficient than other new homes. The lower the score, the more energy efficient the home is.
Green aspects of the home include:
» Exterior structural insulated panels
» ThermaEZE foundation in the basement, which keeps it insulated
» Insulated basement floor
» Array of solar panels on the roof
» Geothermal heating/cooling
» Energy-star rated windows and doors by Fischer Window & Door
» Recycled content tile throughout the entire home
» Reflective roofing materials
» Zero VOC paint throughout home
» Low flow plumbing fixtures
Architecturally interesting, energy efficient and unique, Cejka’s home is a stunning illustration of innovation, creativity and modernism, which will hopefully open the door for future designs in the St. Louis area.





